Münchner Volkstheater

LRO GmbH & Co. KG Freie Architekten BDA

Münchner Volkstheater

Erster Akt im Torbogen

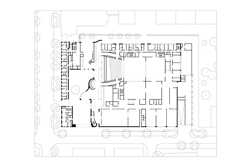
Auf dem ehemaligen Viehhofareal entsteht ein neues Quartier mit dem Volkstheater im Zentrum. Das Bild ist geprägt von einer Industriearchitektur aus historisierenden Resten der Zwanzigerjahre und großflächigen Nachkriegsbauten. Zur gestalterischen Einbindung eines denkmalgeschützten Gebäudeflügels bot sich die Wahl von Ziegeln für die Gebäudehülle an. Es wurden Vollziegel aus traditioneller Herstellung im Strangpressverfahren verwendet, mit entsprechenden Variationen in Form und Farbgebung.

Zwischen dem Altbau, einem schmalen Gebäuderiegel mit Klinkerfassade an der Nordseite des Grundstücks, und dem neuen Foyer ist ein Hof positioniert, der sich mit einem großen, aus roten Ziegeln gemauerten Bogen zur Straße hin öffnet. Der Torbogen verbindet Alt- und Neubau. Gegenüber öffnet sich die Fassade des Neubaus mit seinem Haupteingang. Im hinteren Teil des Hofs befindet sich der Außensitzbereich des angrenzenden Theaterrestaurants.

Die Höhenentwicklung des Neubaus zeigt eine Abfolge von nach oben hin immer leichter werdenden Materialien: Die zweischaligen Außenwände von Erd- und 1. Obergeschoss bestehen aus einer tragenden Stahlbetonkonstruktion mit Ziegel-Verblendmauerwerk. Über diesem schweren Sockel folgen ein leicht wirkendes Technikgeschoss mit gefalteten Fassaden aus weißem Streckmetall und ganz obenauf der Bühnenturm mit einer dünnen Haut aus semi-transparentem Glasfasergewebe. Filigrane Vordächer, Gesimse und Attiken aus Betonfertigteilen nehmen direkten Bezug auf den Baubestand.

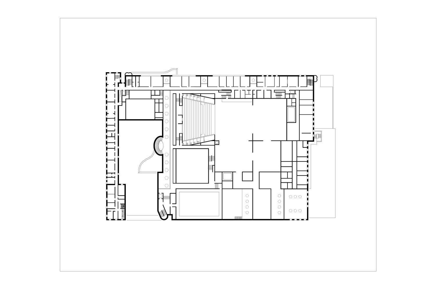
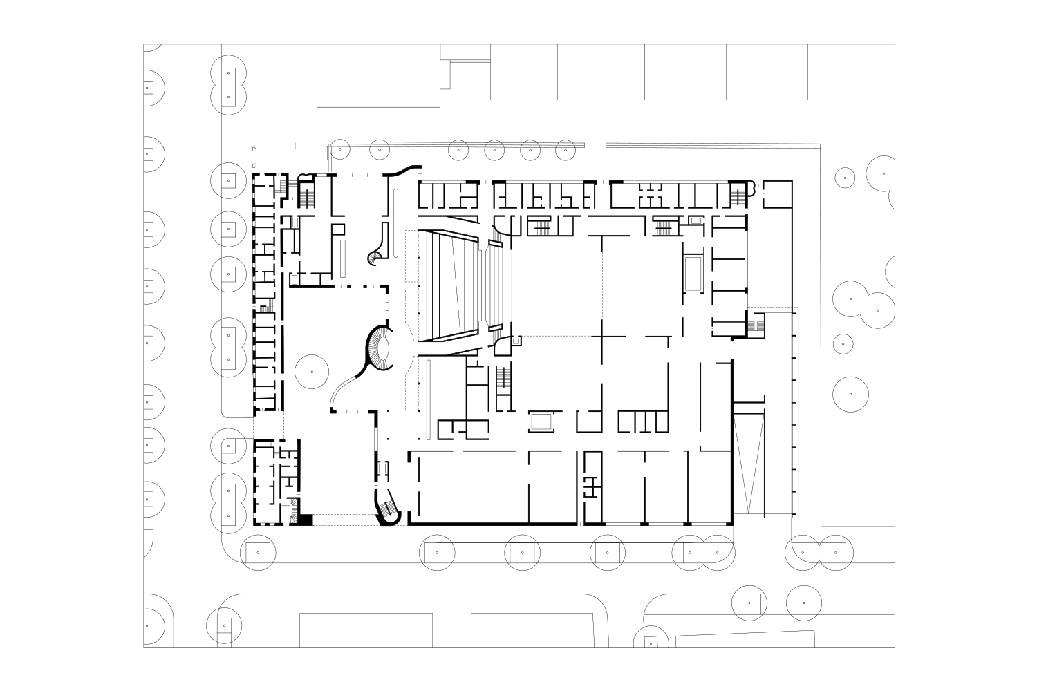
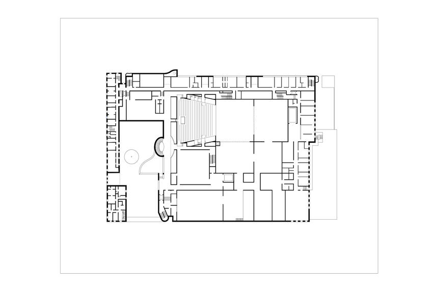
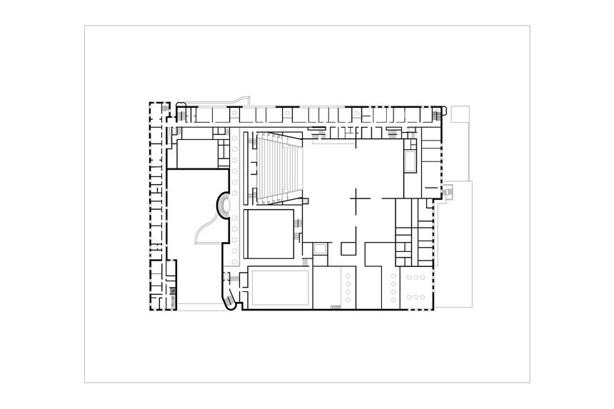
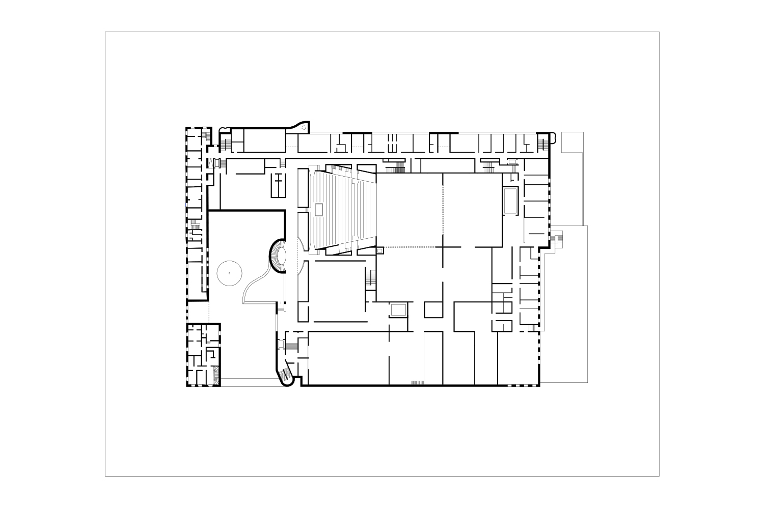
Die Formgebung des gemauerten Gebäudesockels mit unterschiedlichen Arten von Öffnungen greift spielerisch typische Elemente der Mauerwerksarchitektur auf: Auswölbungen der Fassade betonen Zugänge, Treppenhäuser und Foyer. Der Windfang leitet Besucher in einer Kurve vom Torbogen zum Empfang. Größere Öffnungen auf Erdgeschossebene sind als flache Kreisbögen ausgebildet. Das Foyer öffnet sich mit einem großen Rundfenster zum Hof. Nebenbereiche sind über Schlitzfenster oder schmale vertikale Öffnungen mit gemauerten, zurückgestaffelten Stürzen belichtet. Das Mauerwerk selbst besteht aus einem flachen roten Ziegel im Wilden Verband und passt sich dadurch den freien Volumina an. Der große Torbogen zum Hof wurde als tragender Mauerwerksbogen vor Ort hergestellt.

Teile der Neubaufassade werden von Wildem Wein berankt und gekühlt, ebenso die hofseitigen Außenwände des historischen Gebäudes mit ihren unkaschierten Abbruchspuren. Im Hof selbst sorgt ein japanischer Schnurbaum zunehmend für Atmosphäre, Schatten und Regenwasserrückhaltung.

Die großzügigen Glasfassaden von Foyer und Café können im Sommer zum Hof hin geöffnet werden. Aus der Form des Grundstücks ergibt sich der längliche Zuschnitt des Foyers mit seiner markanten Farbgebung. Anlieferung, Werkstätten und Lagerräume sowie die Bühnenbereiche beanspruchen den südlichen Teil des Baufelds, dazwischen liegen der Zuschauerraum für 600 und die zweite Spielstätte für 200 Personen. Die Verwaltungsspange bildet die Ostseite des Gebäudes und ist mit dem Altbau verbunden.

Die hohe Energieeffizienz wurde durch frühe Erhebung der Nutzungsrandbedingungen und Optimierung der Haustechnik erzielt. Die Anforderungen des IHKM Klimaschutzprogramms der Stadt München wurden erfüllt. Zum kompakten Gebäudevolumen treten hochwärmegedämmte Außenwände mit idealem Verhältnis zwischen offenen und geschlossenen Flächen, die Speichermasse der Betonkonstruktion und robuste, langlebige Oberflächen wie etwa Ziegel hinzu.

LRO 

Ort
München, Deutschland
Bauherr
Landeshauptstadt München
Grundstückfläche
10.890 m²
Bebaute Fläche
7.630 m²
Nutzungsfläche
14.225 m²
Brutto-Rauminhalt
159.770 m³
Bauzeit
2017–2021
Baukosten
80 Mio. €