Alice Guy public school

RAUM

Alice Guy public school

Höfe des Lernens

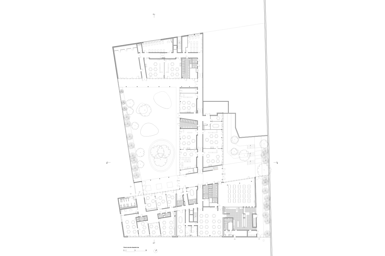
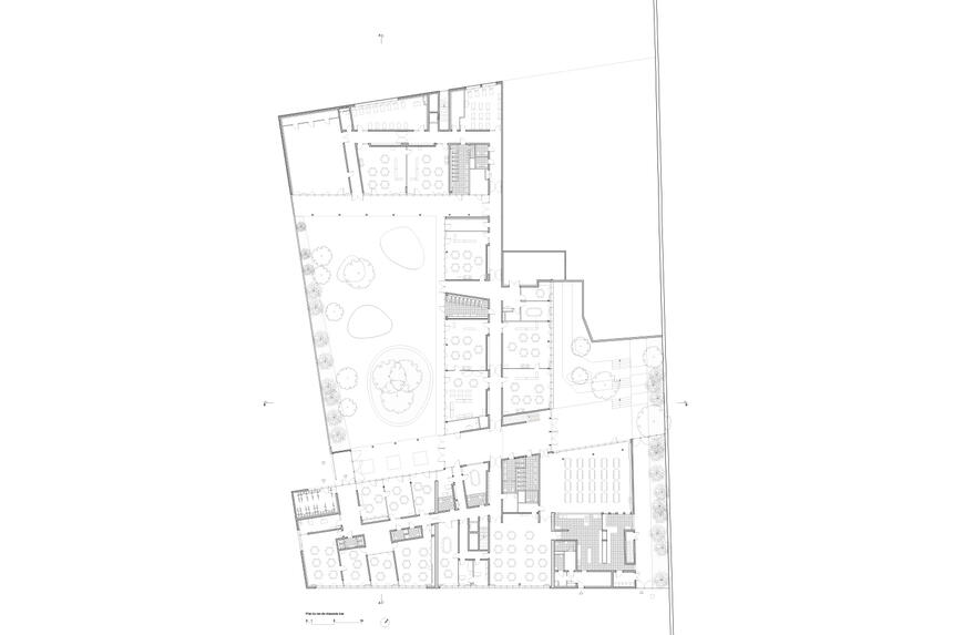
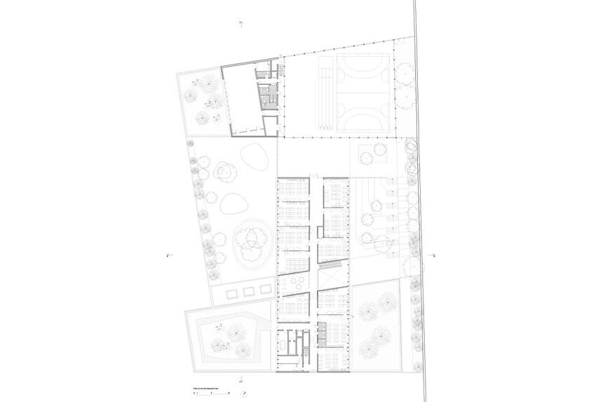
Das Schulprojekt entwickelt eine architektonische Antwort auf drei spezifische Herausforderungen: Ein verkleinertes Grundstück, das ein kompaktes Projekt erfordert. Die Notwendigkeit von Spielhöfen auf derselben Ebene wie die beiden Schulen – Kindergarten und Grundschule. Ein effizientes Baukonzept, das die Langlebigkeit der Strukturen sowie die Kontrolle des Energieverbrauchs gewährleistet. Die vorgeschlagene Anordnung spielt sowohl mit den Höhenunterschieden des Geländes als auch mit der Beziehung zwischen dem neuen städtischen Raster und der alten Ausrichtung der Kasernen. Die Nutzung der Topografie zugunsten des Programms ermöglicht eine Anlage, in der sich alle Räume mit ihren Höfen auf derselben Ebene befinden.

Die Klarheit der Funktionsverteilung sowie die strukturelle Einfachheit sind Voraussetzungen für die Nachhaltigkeit der Anlage und ihre Erweiterbarkeit. Zu diesem Zweck ist das Projekt in drei Hauptbereiche gegliedert, die durch eine zentrale Halle miteinander verbunden sind:  Grundschule, Kindergarten und gemeinsame Plattform. Die gemeinsame Plattform umfasst außerschulische Aktivitäten, die sich zum Kindergartenhof und zur Halle öffnen; die Verwaltung, im Zentrum der Anlage gelegen und über die Halle mit allen Funktionen verbunden sowie die Mensa, die direkt von der Halle aus zugänglich ist. Der Kindergarten liegt im unteren Erdgeschoss und ist um seinen Spielhof organisiert. Die Räume werden über einen großzügigen zentralen Flur erschlossen und erhalten natürliches Licht durch Öffnungen zum Hof. Die Grundschule befindet sich im oberen Erdgeschoss und funktioniert nach demselben Prinzip einer zentralen Erschließung mit natürlicher Belichtung. Diese überblickt die doppelte Raumhöhe der Halle sowie den Hof der Grundschule.

Höfe, pädagogische Gärten, begrünte Terrassen: verschiedene Typologien für vielfältige Nutzungen
Die Außenräume auf dem Schulgelände bieten Schülerinnen und Schülern sowie Lehrkräften unterschiedliche Raumtypen, die eine interessante Nutzungsvielfalt ermöglichen: Spielen, Entspannen, gemeinschaftliches Gärtnern und pädagogische Aktivitäten. Die Höfe sind multifunktionale Spielbereiche, die Spiele, einen Fahrradparcours, ein Sportfeld usw. aufnehmen können und dadurch eine klar mineralische Identität erhalten. Gleichzeitig verleihen der Erhalt der vorhandenen Bäume sowie die Pflanzung neuer Bäume den Höfen eine wesentliche grüne Präsenz: Diese großen Grünflächen strukturieren die Höfe und setzen Akzente, indem sie den Schülern Orientierungspunkte, attraktive Aufenthaltsorte und kühlere Bereiche innerhalb der großen Hofanlagen bieten.

Einfachheit der Rohmaterialien
Der Einsatz von Rohmaterialien erfüllt zwei wesentliche Funktionen: Erstens garantiert er durch das Fehlen von Oberflächenbehandlungen ein gutes Alterungsverhalten der Materialien – eine Patina entsteht durch die natürliche Veränderung des Materials selbst und nicht durch die Abnutzung einer Beschichtung. Zweitens entfaltet sich die gestalterische Qualität der Rohmaterialien (Holz, Backstein, Beton, Glas) gerade durch dieses Fehlen von Behandlungen, die oft umweltbelastend sind, um Materialien „zeitbeständig“ zu machen, und daher nicht mit einem ökologischen und wirtschaftlichen Ansatz beim Energieverbrauch vereinbar sind.

RAUM

Ort
Nantes, Frankreich
Bauherr
City of Nantes
Architektenprofil
Grundstückfläche
6.000 m²
Bebaute Fläche
3.832 m²
Nutzungsfläche
3.679 m²
Bauzeit
2019–2022
Baukosten
12,1 Mio. €