House 1721

Harquitectes

Gebäudefoto House 1721

Wandelbares Stadthaus

Das House 1721 spielt mit Licht und Schatten, den Materialien Backstein und Holz sowie mit Raumfolgen. Im Inneren entfaltet sich eine flexible Nutzung, die sich von klassischen Strukturen löst.

Dieses Projekt ist ein Einfamilienhaus zwischen Kommunwänden in Granollers. Der Bauherr wünschte sich ein Haus, das sich an vier unterschiedliche Familiensituationen anpassen kann: allein zu Hause, mit dem Partner oder in verschiedenen Konstellationen mit den Kindern. Das Gebäude nutzt die gesamte verfügbare Höhe, um über die Nachbarn hinweg Sonnenlicht zu gewinnen. Dadurch erreicht es das maximal zulässige Volumen, ohne die gesamte bebaubare Fläche auszuschöpfen. 

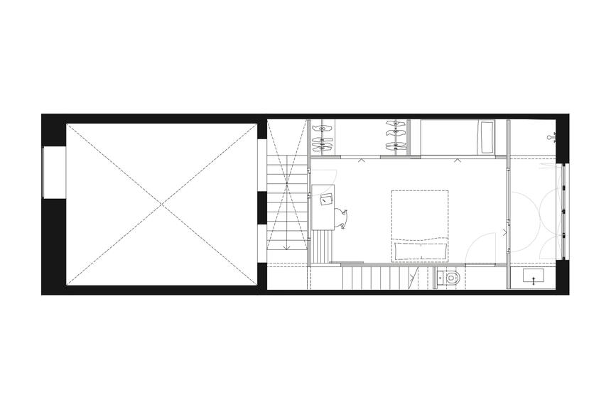
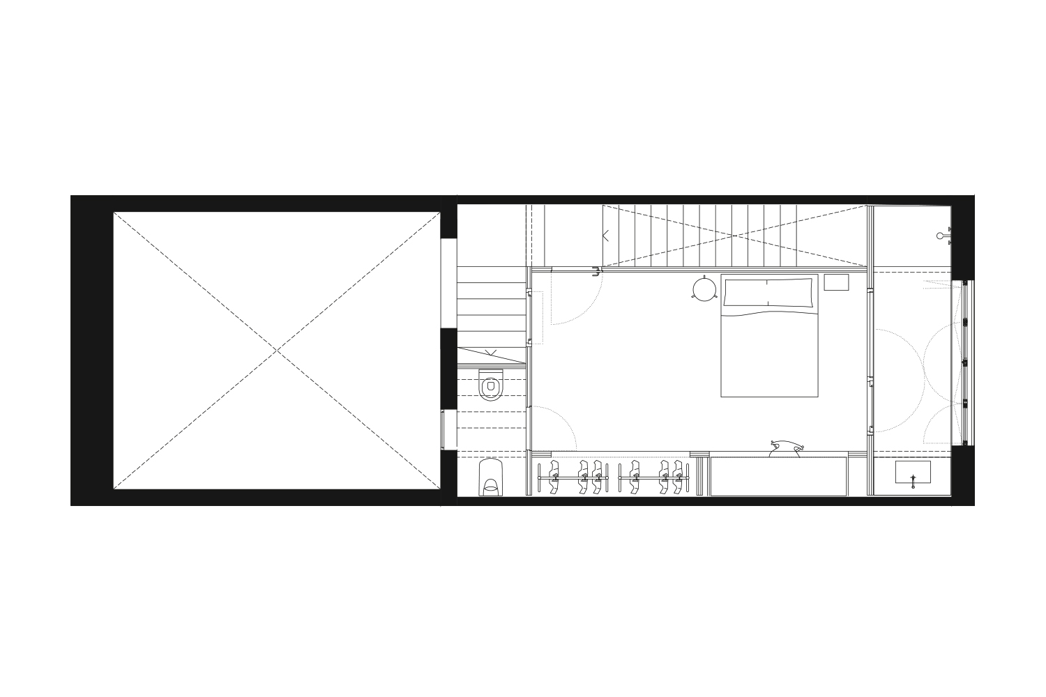
Dies führt zu einer Gliederung in zwei sehr unterschiedliche Bereiche: Erstens ein hoher, vertikaler Raum mit zenitalem Lichteinfall, der nicht vom Nachbarn verschattet wird; zweitens ein Turm mit einem Erdgeschoss und drei oberen Etagen, die jeweils nur einen Raum beherbergen. Der vertikale Raum, der sein Licht ausschließlich von oben bezieht, ist auf der Westfassade vollständig geschlossen, um die Probleme dieser Ausrichtung – insbesondere die sommerliche Überhitzung – zu vermeiden. Zudem schützt diese Gestaltung vor Lärm und unerwünschten Einblicken von der Hauptstraße. Der so geschaffene Raum hat außergewöhnliche Dimensionen und eine besondere Lichtsituation, was ihn zu einer vielseitig nutzbaren Fläche macht, die keiner festen Funktion unterliegt.

Es folgt der „Raumturm“: Im Erdgeschoss befinden sich der Essbereich und die Küche, die an das Wohnzimmer anschließen. Die erste Etage ist für den Eigentümer vorgesehen, die zweite für die Tochter und die dritte für Gäste. Diese Konfiguration ermöglicht eine flexible Nutzung der Etagen je nach Anzahl der Bewohner. Da jede Etage nur einen einzigen Raum umfasst, ist eine Querlüftung möglich, mit natürlichem Licht von Garten- und Eingangsseite. Um diesen Effekt von Licht und Belüftung zu verstärken, verzichtet das Treppenhaus auf die traditionelle tragende Wand, die normalerweise Straßen- und Innenräume trennt. Stattdessen windet sich die Treppe um die Raumachse und verändert ihre Position auf jeder Etage. Dadurch entsteht beim Aufstieg der Eindruck, dass keine weiteren Stockwerke existieren. Die durch die Treppe beanspruchte Fläche wird für zusätzliche Funktionen der Räume genutzt: Bäder, Stauraum, Schlafbereiche und Wasserzonen.

Die materielle und strukturelle Strategie beruht auf zwei Hauptkomponenten: Die äußere Hülle – bestehend aus Brandwänden, Fassaden und dem Lichtraum – wird in Backstein ausgeführt, während die Wohnräume aus Holz (CLT-Paneele) gefertigt sind. Die keramische Struktur sorgt für thermische Trägheit und Belüftung, was das Gebäude in ein adiabatisches System verwandelt. Die Holzkonstruktion hingegen bietet Komfort durch Dämmung und Luftregulierung. Diese Materialdualität bleibt sowohl im multifunktionalen als auch im privaten Wohnraum sichtbar, durch gezielt platzierte Öffnungen für Durchgänge und Blickbeziehungen.

Die Bauvorschriften erlauben ein zusätzliches Nebengebäude, das hier zur Erweiterung des Erdgeschosses genutzt wird. Eine strategisch platzierte Pergola unterteilt den Außenbereich in zwei unterschiedliche Zonen: einen Innenhof mit Terrassencharakter und einen Garten.
 

HARQUITECTES

Ort
Granollers (Spanien)
Bauherr
privat
Architektenprofil
Grundstückfläche
281 m²
Bebaute Fläche
145 m²
Nutzungsfläche
144 m²
Bauzeit
2019–2021