Feuer- und Rettungswache Wiesbaden-Igstadt

Bayer & Strobel Architekten

Feuer- und Rettungswache Wiesbaden-Igstadt

Identitätsstiftender Auftritt am Ortseingang

Ein winkelförmiger Baukörper mit klar gegliederten Funktionsbereichen und zurückhaltenden, hochwertigen Materialien wie Backstein schafft eine räumlich durchdachte, lärmgeschützte und gestalterisch markante Gesamtanlage beim Neubau der Feuer- und Rettungswache.

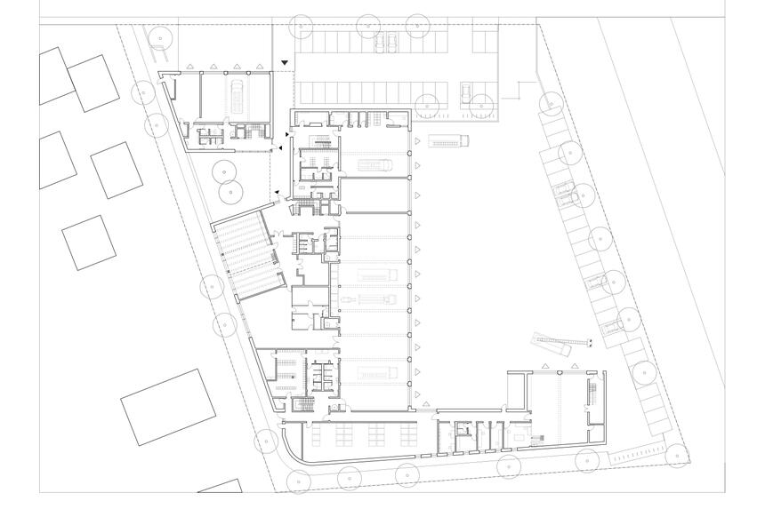
Die besondere Herausforderung beim Neubau der Feuer- und Rettungswache in Igstadt besteht darin, die drei Nutzungseinheiten (Berufs- und Freiwillige Feuerwehr, Rettungsdienst) funktional sinnvoll auf dem Grundstück anzuordnen und dabei die hohen Anforderungen des Schallschutzes im Hinblick auf die benachbarte Wohnbebauung zu erfüllen. Darüber hinaus sollen die einzelnen Gebäudeteile aber auch einen prägnanten Gesamtbaukörper erzeugen, der der städtebaulich exponierten Lage unmittelbar am Ortseingang gerecht wird. Ausgangspunkt des Entwurfs ist ein winkelförmiger Baukörper, der sämtliche lärmintensiven Nutzungen wie Alarm- und Übungshof, Parkplätze und Anlieferung von der geplanten Wohnbebauung abschirmt. 

Die einzelnen Freibereiche sind den jeweiligen Nutzergruppen klar zugeordnet und eine kreuzungsfreie Wegeführung für ein- und ausrückende Fahrzeuge nachgewiesen. Die Rettungswache rückt am häufigsten aus und hat ihre Ausfahrt folglich direkt zur Nordenstadter Straße hin. Durch leichtes Abrücken der Rettungswache im Erdgeschoss entsteht eine räumlich reizvolle Durchgangssituation, die den Eingang zum Gebäude deutlich markiert und zu einem kleinen Innenhof (Eingangshof) führt. Die Eingänge zu Rettungsdienst und Freiwillige Feuerwehr liegen im Durchgang, der Eingang der Berufsfeuerwehr öffnet sich unmittelbar zu dem Eingangshof hin. Da die Stellplätze der Berufsfeuerwehr im Osten am Alarmhof liegen, ist auch hier von einer minimalen Belastung der Nachbarn auszugehen – und das nur am Tage. Zudem gliedert der Eingangshof den Baukörper nach Westen und stellt mit seiner hüfthohen Einfriedung eine auch baulich sehr verträgliche Nachbarschaft her. 

Im Innern sind die einzelnen Funktionsbereiche klar gegliedert, wobei das Erdgeschoss jeweils diejenigen Nutzungen aufnimmt, welche den Fahrzeughallen unmittelbar zugeordnet sind. Die Obergeschosse nehmen die weiteren Bereiche wie Verwaltung, Aufenthalt und Sport auf. Die Freisitzflächen sind als Loggien oder Dachterrassen angelegt und sind ebenfalls nicht zur Wohnbebauung orientiert. Von den Aufenthaltsbereichen der Berufsfeuerwehr aus blickt man über den Alarmhof und die Felder. Dies betrifft insbesondere auch die Sporthalle im zweiten Obergeschoss, welche aus diesem Grund eine bodengleiche Verglasung erhält. 

Das Material Backstein stellt eine dauerhafte, wartungsarme und sehr hochwertige Fassadenkonstruktion dar. Zudem betont das Material die plastische Erscheinung des Baukörpers und kann auch für ansonsten untergeordnete Bauteile wie Einfriedungen, Pflaster etc. verwendet werden. Der Backstein verweist dabei inhaltlich auf klassische Funktionsarchitekturen, die rote Farbigkeit auf die Nutzung als Feuerwache.

Bayer & Strobel Architekten

Ort
Wiesbaden-Igstadt
Bauherr
Landeshauptstadt Wiesbaden
Architektenprofil
Grundstückfläche
8.043 m²
Bebaute Fläche
3.139 m²
Nutzungsfläche
4.362 m²
Brutto-Rauminhalt
32.133 m³
Bauzeit
2019–2022
Baukosten
12,89 Mio. €