Auditorium Theatre in the old quarter of Illueca

Magén Arquitectos

Auditorium Theatre in the old quarter of Illueca

Ein ganzes Dorf als Theater

Mit einem neuen Theaterbau auf dem Gelände des ehemaligen Kinos erhält die Stadt Illueca einen kulturellen Treffpunkt, der sich durch seine kleinteilige Formensprache sensibel in die historische Struktur des ländlichen Ortskerns einfügt.

Illueca ist eine Stadt im westlichen Teil der Provinz Zaragoza und das Verwaltungszentrum der Region Aranda, einer der am dünnsten besiedelten Gegenden Aragoniens. Um der Abwanderung entgegenzuwirken und Freizeitangebote zu schaffen, schrieb der Gemeinderat einen Wettbewerb für den Bau eines Theaters auf dem Gelände des ehemaligen Kinos aus. Der Baukörper schließt den Block entlang der östlichen Grenze des Ortszentrums ab und ist auf der Nordseite an Wohnhäuser angebaut.

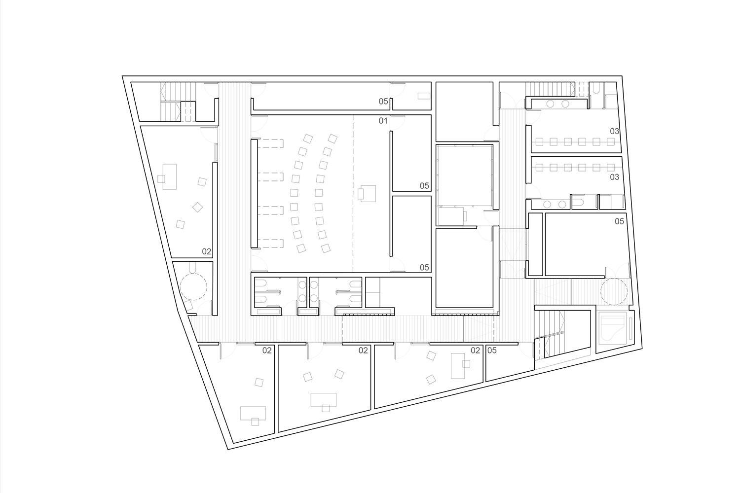
Das zentrale Ziel des Projekts war es, das erforderliche Bauvolumen in das historische Gefüge einer ländlichen Stadt einzufügen. Entsprechend dem kleinteiligen Maßstab der Umgebung wird der Zuschauerraum in vier Teile gegliedert – Bühnenhaus, Zuschauerbereich, Foyer und Servicebereich – mit geneigten Dächern sowie unterschiedlichen Höhen und Ausrichtungen. Diese Maßnahme reduziert die wahrgenommene Größe des Gebäudes und erzeugt ein Zusammenspiel versetzter Baukörper. Dadurch wird auf die Formen lokaler Gebäude und die unterschiedlichen Überlagerungen in der historischen Wohnstruktur angespielt, die sich auf unebenem Gelände entwickelt hat. Der Eingriff vervollständigt somit das Profil des historischen Ortskerns, ohne es zu verändern.

Die Konstruktion besteht aus roten Klinkersteinen – ergänzt durch Kupferdächer – und erinnert damit an die Keramiktradition der Region. Gleichzeitig fügt sich das Gebäude farblich in die Umgebung ein, deren Bauten oft den Sandsteinton der lokalen Steinbrüche aufweisen. Dieser Sandstein wird auch im Sockel verwendet, der sich dem unebenen Gelände mit einem Höhenunterschied von 2,50 Metern anpasst. Das Projekt untersucht die gestalterischen Möglichkeiten des Backsteins in unterschiedlichen Formaten: Gitterstrukturen, Mauerwerk, Stürze, akustische Elemente usw.

Das Gebäude ist um den Hauptsaal organisiert, dessen Erschließungen und Zugänge sich auf unterschiedlichen Ebenen befinden. Der Saal bietet Platz für 224 Zuschauer und verfügt über eine durchgehende Bestuhlung mit verschiedenen Bereichen: eine leicht ansteigende Sitzfläche, eine geneigte Ebene, die das Foyer mit dem ersten Obergeschoss verbindet, sowie Balkone auf der oberen Ebene.

Im Inneren strukturieren unterschiedliche Lufträume, Öffnungen und Lichteinfälle die Beziehung zwischen den vier äußeren Baukörpern. Dadurch werden die offenen, visuell und räumlich verbundenen Zugangs- und Erschließungsbereiche vom geschlossenen Saal unterschieden. In den ersteren erzeugt das durch keramische Gitter, Fenster und Oberlichter gefilterte Licht im Laufe des Tages eine wechselnde Atmosphäre. Holzrahmen eröffnen Ausblicke auf das historische Zentrum. Nachts macht das aus dem Gebäude strahlende Licht seine Nutzung als Veranstaltungsort sichtbar.
 

Magén Arquitectos

Ort
Illueca, Spanien
Architektenprofil
Grundstückfläche
530 m²
Bebaute Fläche
487 m²
Nutzungsfläche
1.055 m²
Bauzeit
2017–2020
Baukosten
1,4 Mio. €