Jüdisches Museum Franken

umarchitekt

Jüdisches Museum Franken

Spuren jüdisch-fränkischer Kultur

Genisa – ein abgeschlossenes Zimmer, das Zeugnisse jüdischer Geschichte in sich birgt. Dieses Motiv hat sich als Leitidee festgesetzt und bildet die Grundlage des Entwurfes. Im übertragenen Sinne wird dieser Raum als Haus im heutigen Kontext neu definiert. Es ist offen um zu entdecken, zu forschen, zu bewahren und auszustellen. 

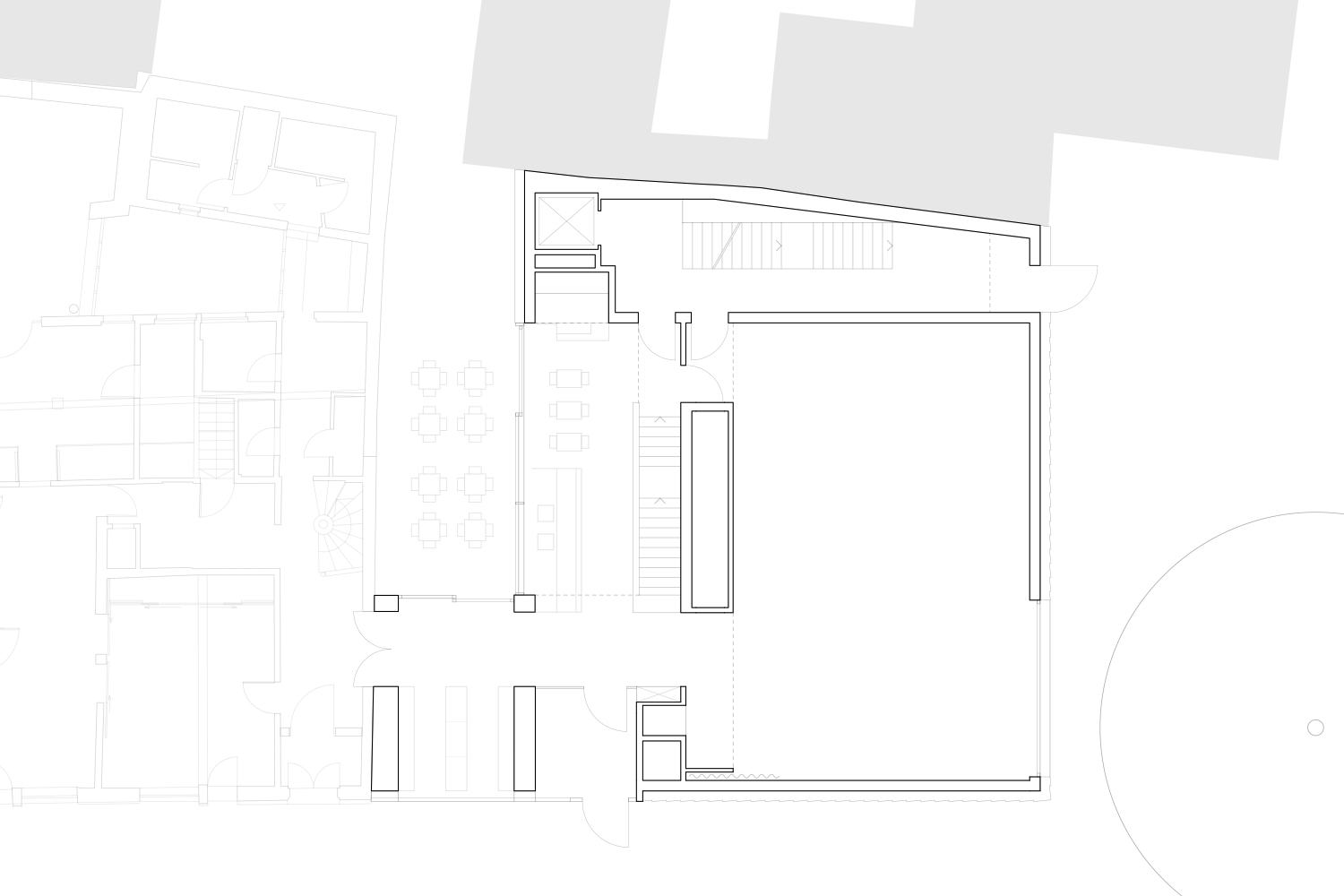
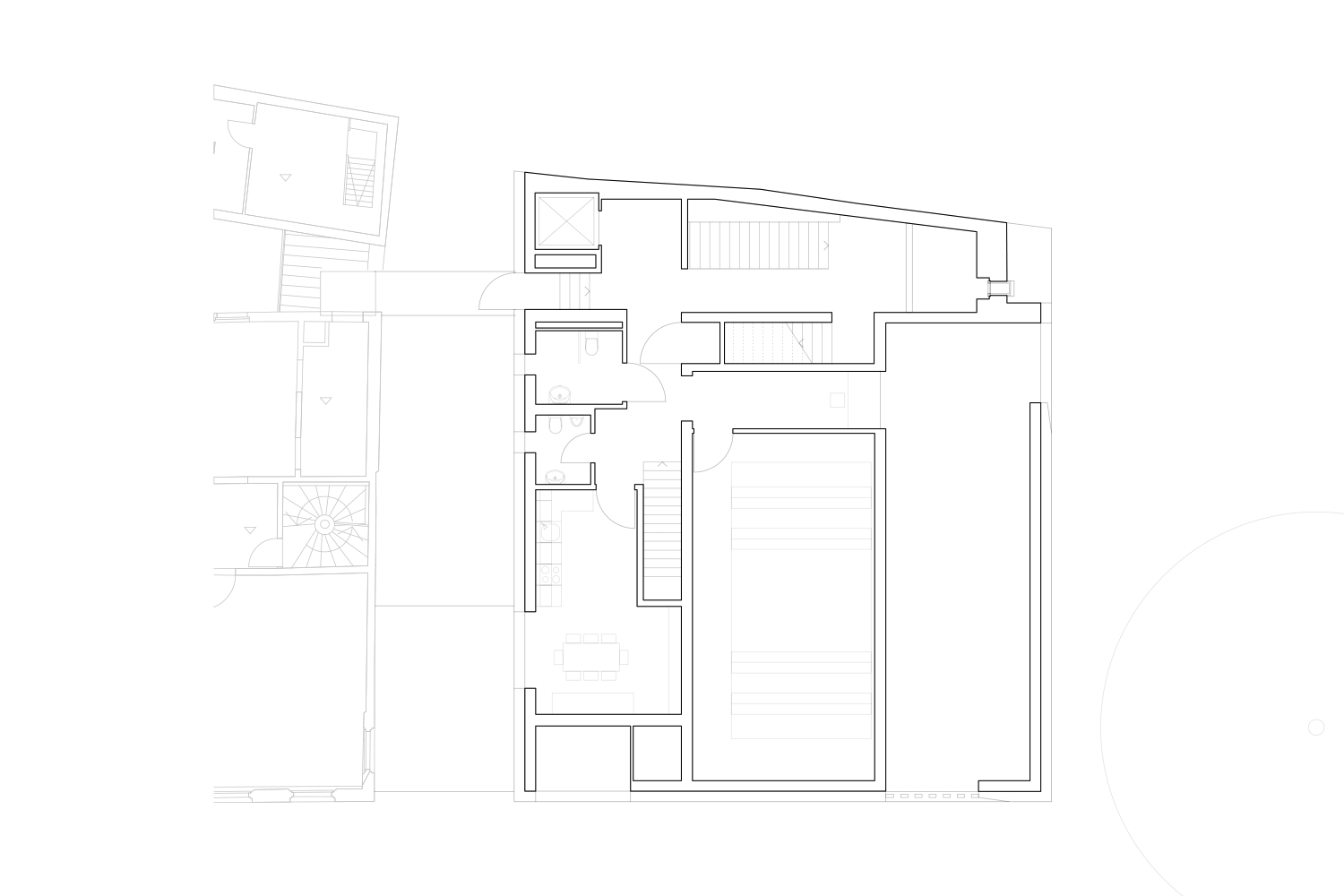
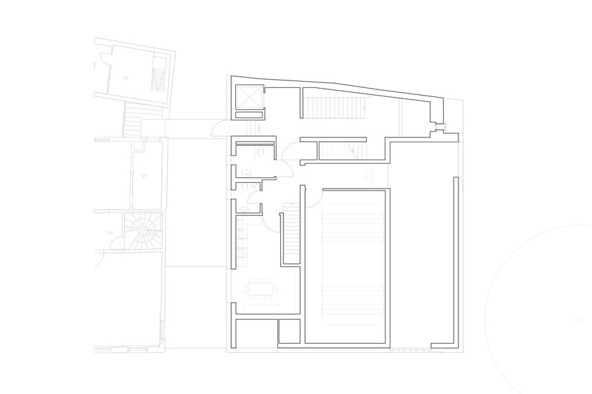
Der fünfgeschossige Erweiterungsbau mit Sonderaustellung und Depot im Untergeschoss wird im Erdgeschoss über ein kleines Foyer mit Kassen- und Cafébereich, welches sich zum Innenhof mit Freisitz öffnet, erschlossen. Von dort gelangt man zum Veranstaltungsaal, der sich zum Helmplatz orientiert. In den beiden Obergeschossen liegen die teilweise zweigeschossige Bibliothek mit Leselounge, Depotraum und Aufenthaltsräume für Personal. Über das barrierefreie Treppenhaus mit Aufzug an der Nordseite ist die Bibliothek und das Dachgeschoß mit den Büroräumen des Museums unabhängig von den Öffnungszeiten der Ausstellungsräume erreichbar.

Mit dem markanten Erweiterungsbau und seiner geschlämmten Klinkerfassade wird eine neue Adresse für das Jüdische Museum geschaffen, der dem repräsentativen Charakter eines Museums im Stadtraum von Fürth gerecht wird. Der Baukörper ist als Kubus mit einer Staffelung des oberen Gebäudeabschlusses an der östlichen Grenzbebauung konzipiert. Die Fassaden treten als homogene Flächen auf und sind durch gezielt platzierte, große Fensteröffnungen gegliedert. Somit wird mit  dem Ensemble aus Alt- und Neubau eine stadträumliche Aufwertung geschaffen, die die Baulücke im Straßenzug der Königsstraße vervollständigt. 

Das Gebäude wird in Massivbauweise aus Stahlbeton mit tragenden Außen- und Innenwänden sowie einzelnen Stützen errichtet. Das notwendige Treppenhaus ist an der nord-östlichen Grundstücksgrenze mit Brandwand zum Nachbaranwesen angeordnet. Die Treppenanlagen werden als Stahlbeton-Fertigelemente mit Stahlgeländer ausgeführt. Die Gebäudehülle besteht aus einer geschlämmten Klinkerfassade als Vormauerschale vor einer mineralischen Wärmedämmung. Die beiden oberen Geschosse sind zum nord-östlich angrenzenden Nachbargebäude hin gestaffelt, greifen in einem Teilbereich die Dachneigung dessen auf und fügen sich somit in das historische Gefüge der umgebenden Bebauung ein. Die Verglasungen erfolgen aus 3-Scheiben-Isolierverglasungen und sind im EG einbruch- und alarmgesichert. Die Hauptdachflächen werden als Flachdächer mit Gefälledämmung (Warmdach) ausgebildet.

umarchitekt

Ort
Nürnberg, Deutschland
Bauherr
Kulturstiftung Fürth im Sondervermögen der DT Deutsche Stiftungstreuhand AG. Fürth
Architektenprofil
Grundstückfläche
324 m²
Bebaute Fläche
379,47 m²
Nutzungsfläche
841 m²
Brutto-Rauminhalt
5.150 m³
Bauzeit
2015–2018
Baukosten
3,5 Mio. €