Muslimisches Wasch- und Gebetshaus Friedhof Finkenriek

Medine Altiok Architektur

Muslimisches Wasch- und Gebetshaus Friedhof Finkenriek

Ein Ort der letzten Gebete

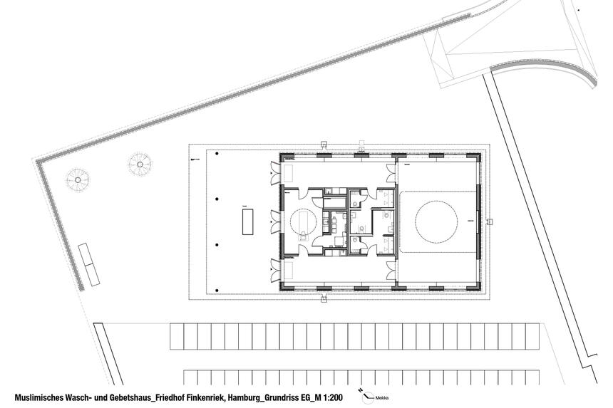
Ein Ort für die rituelle Waschung und für die Gebete bei muslimischen Beerdigungen, ein Mauerwerksbau der Baukulturen verbindet. Der Friedhof Finkenriek in Hamburg sollte um ein muslimisches Gräberfeld mit einem Wasch- und Gebetshaus erweitert werden. Das Gebäude wurde mit Partizipation von Imamen als Vertreter von lokalen muslimischen Gemeinden entwickelt. Es sollte ein schlichtes, den Islam repräsentierendes Erscheinungsbild und eine der Aufgabe angemessene räumliche Atmosphäre bieten. 

Im Grundsatz soll das Wasch- und Gebetshaus alle Funktionen kompakt unter einem Dach vereinbaren. Es handelt sich um ein eingeschossiges und freistehendes Gebäude, welches in massiver Bauweise errichtet wurde. Das Gebäude ist genauso wie die Grabfelder in Gebetsrichtung nach Mekka ausgerichtet. Zentrales Entwurfsthema bildet das Dach und die moderne Umsetzung architektonischer Elemente aus der islamischen Architektur in der Fassade und dem Innenraum. Das Mauerwerk soll hell sandsteinfarben sein, im Bereich des Wasch- und Gebetsraumes viel Licht einfallen lassen und von Außen nicht unbedingt einsehbar sein. Dies soll umgesetzt werden mit großzügigen Fenstern, die für seitlichen und gefilterten Lichteinfall sorgen. Als Fassadenmaterial wird ein sandsteinfarbener Backstein vorgeschlagen, der vor den Fenstern mit Lücken und in den anderen Bereichen vor- und zurückspringend gemauert wird, dass sich in der Fassade ornamentale Muster abbilden. Vorbild für die Architektur sind geometrische und florale Muster, die in der traditionellen Islamischen Architektur in Moscheen, in Wohnhäusern und in Palästen zum Einsatz kamen. Für eine spezielle Atmosphäre im Innenraum ist in der Decke des Waschraumes und des Gebetsraumes jeweils eine Kuppel eingearbeitet.

Der Vorplatz wird von einer zwei Meter hohen Einfriedungsmauer begrenzt und schützt vor Einsicht. Die Mauer wird aus demselben sandsteinfarbigen Mauerstein wie das Gebäude und mit einem Stbt-Kern hergestellt. Entlang der Mauer ist eine Sitzgelegenheit zu dem Gebäude gerichtet angeordnet. Die befestigten Flächen auf dem Vorplatz des Gebäudes werden in Pflasterbauweise hergestellt. Die Pflasterflächen werden aus geschlossenporigen und sandsteinfarbigen Betonsteinen hergestellt, die Fugen werden mit Sand eingeschlämmt.

Die Grabanlage hat insgesamt 103 Gräber, ist von zwei Meter hohen Eibenhecken begrenzt und vor Einsicht geschützt. Entlang der Hecke ist eine Sitzgelegenheit und eine Wasserzapfstelle zu den Grabfeldern gerichtet angeordnet. Die ansonsten karge Bepflanzung betont zusammen mit den in befestigten Rasenflächen angeordneten Gräbern die Schlichtheit der Anlage. Die Wege auf dem Grabfeld werden aus Schotterrasen hergestellt.

Im Zuge der Friedhofsplanungen wurde für die Zukunft ein erhöhter Bedarf an muslimischen Bestattungen prognostiziert. Deshalb wurden neben der hier beantragten Genehmigung der Freianlagen in der Ausbaustufe 1 (alter Lagerplatz) mit einer Kapazität von 103 Gräbern weitere Grabfelder (Ausbaustufe 2: Grabfeld 17 mit ca. 272 Grabstätten und Ausbaustufe 3: Grabfeld 21 mit 172 Grabstätten) überplant. Die 2. und 3. Ausbaustufe sollen bei Bedarf zu einem späteren Zeitpunkt ausgeführt werden.

Es handelt sich um ein eingeschossiges und freistehendes Haus, welches in massiver Bauweise errichtet wird.  Die Außenwände sind in Stahlbeton gefertigt. Sie erhalten eine Vormauerschale aus Klinker. Die Vormauerschale wird durchbrochen (d. h. mit versetzt gemauerten Steinen) bis auf das Fundament geführt. Die Innenwände sind in KS-Mauerwerk errichtet.

Medine Altiok Architektur

City
Hamburg
Client
DEGES Deutsche Einheit Fernstraßenplanungs- und –bau GmbH
Architect profile
Plot size
2.350 m²
Built-up area
350 m²
Usable area
220 m²
Construction time
2019–2020
Construction costs
2,7 Mio. €