WERKSTADT

Pascal Schettki und Andreas Mischke

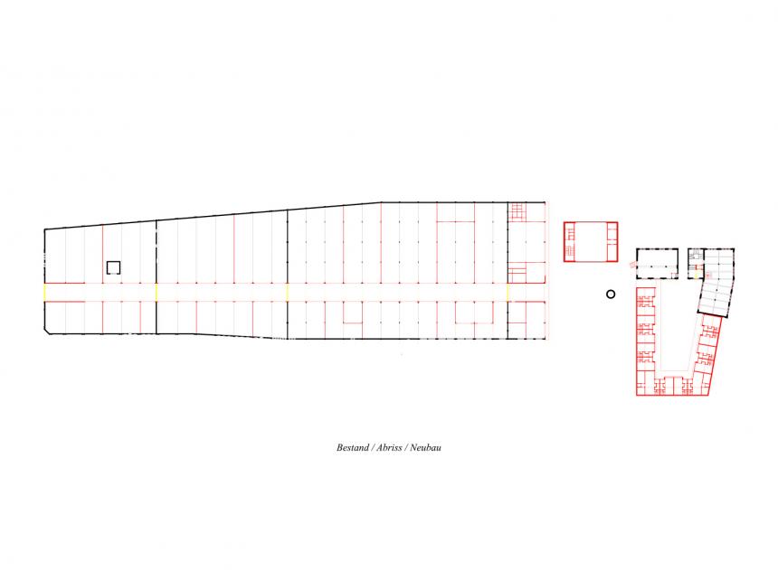
WERKSTADT - Alte Textilfabrik Berga

Alte Textilfabrik Berga

Anliegen war es die alte Textilfabrik „Ernst Engländer“ wieder zum Teil der Stadt Berga werden zu lassen und eine Vervollständigung, sowie Ergänzung des Ortszusammenhangs herzustellen. Das Bestehende wird neu geordnet und ergänzt, so dass drei zentrale Bausteine entstehen, welche zu einem Ensemble werden. In ihrer Baukörperlichkeit geht eine starke suggestive Kraft von ihnen aus und wirkt in Umgebung, Stadt und Landschaft.

Berga liegt in einer landschaftlich sehr ansprechenden Tallage, der Weißen Elster nahe der thüringisch-sächsischen Landesgrenze, in südwestlicher Randlage zum eigentlichen Ort. Um den konkreten Ort der alten Textilfabrik „Ernst Engländer“ wieder zugänglich zu machen, war es Anliegen diesen Beitrages, die alte Textilfabrik wieder zum Teil der Stadt und Gemeinde Berga werden zu lassen und eine Vervollständigung, sowie Ergänzung des Ortszusammenhangs zu ermöglichen. Aus denkmalpflegerischen Gesichtspunkt war es für uns von Interesse, dass Vorgefundene weitestgehend zu Erhalten. Und das nicht allein aufgrund der weitestgehend gut erhaltenen Baustruktur, sondern, weil es ein wichtiges Zeitzeugnis der Industriearchitektur in dieser Region darstellt. Hierbei kam nun die Frage auf, inwiefern man an diesem Ort, mit dieser Fläche operieren kann und welche Konzepte eine Tragfähigkeit besitzen, die diesem Ort wieder einen neuen Sinn zum Erhalt geben.

Eine Aussage, die der Schweizer Architekt Roger Diener zum zukunftsfähigen Umgang denkmalgeschützter Bausubstanz machte, schien für uns eine reizvolle Ausgangsthese zu sein. So heißt es in einem Wettbewerbsbeitrag Roger Dieners 2002: “Wenn es um den Erhalt eines Gebäudes geht, bedeutet Entwerfen (auch) eine Nutzung zu finden, die sich als neuer Sinn in seine Struktur einzuschreiben vermag.“ Doch was könnte an diesen Ort eine schlüssige Nutzung sein? Die Konzeptidee hierbei war es nun, sich weniger auf eine Nutzung zu konzentrieren, sondern vielmehr eine Diversität und die Möglichkeit verschiedenster Nutzungen zuzulassen. Das ganze Areal wird hierbei polyfunktional gedacht, funktioniert gewissermaßen wie eine Stadt, ein eigenes Quartier, dass durch differenzierte Nutzungen, Ansprüche und deren Reibungen zueinander zu einem lebendigen Ort wird.

Ein Potpourri aus Orten der Gemeinschaft, des Arbeitens, des Denkens und des Wohnens. Möglicherweise auch aus einer Landsehnsucht begründet, wurde dieses Thema dahingehend geschärft. Denn in den Städten werden bezahlbare Büro- und Werkstattflächen knapper, auch in dieser Region. Also wieso sollte man nicht den Weg auf das Land finden, zumal in solch ansprechender naturräumlichen Lage. Die Idee ist, die riesigen Flächenpotentiale durch differenzierte Nutzungen aus Werkstätten und Büros verschiedenster Art und Nutzung zu füllen. Dabei ist es Anliegen, dass die Benutzer miteinander ins Gespräch kommen, ihr Wissen teilen, sich austauschen und gemeinsam Ideen entwickeln. Als Schlüsselnutzung hierzu sahen wir es als wichtig an dem Ort zu Wohnen. Für einen bestimmten Zeitraum, an einem gemeinsamen Ort, aber trotzdem mit individuellen Rückzugsmöglichkeiten. Weiterhin schien für uns, dass bislang die naturräumlichen Potentiale nicht vollends ausgeschöpft werden, da es bisher schlicht an die notwendiger Infrastruktur fehlt. Die Idee, dort an diesem besonderen Ort eine Herberge entstehen zu lassen scheint naheliegend und gewinnbringend zugleich. Zudem wird eine interessante Mischung von verschiedenen Alters- und Zielgruppen geschaffen - Schulklassen und Fahrradtouristen erleben, wie kreative Städter ihre Ideen entstehen lassen. Alle Nutzungen so räumlich organisiert, dass sie jedoch für sich genommen funktionieren könnten.

Allerdings besteht die Notwendigkeit die vorhandenen Fragmente mit stadttypischen Typologien zu vervollständigen. Das Projekt versucht hierbei städtebauliche Fragestellungen zu beantworten, in dem die Eingriffe auf den Kontext bezogen formatiert und in ihrem Proportionen und Ausdruck auf die jeweilige Umgebung und Situation hin arrangiert. Klassische Stadtbausteine - Platz, Straße, Innenhof, Fassade - waren hierfür ausschlaggebende Betrachtungsebenen. Dabei war es ein zentrales Anliegen Sehnsuchtsorte zu schaffen, von dem eine suggestive Kraft ausgeht. Die hinzugefügten Baukörper besitzen allesamt einen prägnanten, räumlich-plastischen Charakter und sollen sich unwiderruflich ins Gedächtnis schreiben und in Einklang auf die vorhandene Bebauung, Landschaft der Umgebung, sowie Topographie treten. Die vorhandene Baustruktur der Sheddachhalle bekommt durch den Schnitt über die gesamte Hallenlänge hinweg eine innere Straße, durch die eine neue räumliche Organisation und Parzellierung zu Stande kommt und neue Nutzungspotentiale entstehen. Ein nebeneinander von verschiedensten Nutzungen - Werkstätten, Parkplätze, Läden, Gärtnerei u.ä. - können flexibel ihren Platz finden. Die neu entstandene Fassade ist in ihrer repetitiven Gestalt und den Ziamonikaöffnungsflügeln äußerst flexibel, quasi industriell gedacht, so dass jegliche Halleneinteilung denkbar ist.

Um ein „Auseinanderfallen“ der beiden entstandenen Teile der Sheddachhalle zu unterbinden, wurden beide Seiten des Hallenendes überdacht gelassen und geben den Eingängen in die Halle einen würdigen Rahmen. Der Solitär versteht sich als Bindeglied und Gelenk zwischen den bisher bestehenden Baukörpern. In seiner Archaik markiert der Solitär schon von weitem diesen Ort und ist das Prägnanteste und zugleich öffentlichste Gebäude. In ihm finden sich ein Café, ein Veranstaltungsraum, ein Seminarraumgeschoss, sowie die Herberge wieder. In seiner Grundrisskonfiguration ist der Solitär pragmatisch, wie effizient gedacht; zwei dienende Funktionsspangen umklammern einen großen auf die Nutzung hinausgerichteten Raumkörper. Das Verwaltungsgebäudes bietet in seinem guten rohbauähnlichen Zustand die perfekte Grundlage für behutsame kleinere Eingriffe. So wird im Inneren der Bau durch eine neue zweite Haut ergänzt, um auch thermischen Anforderung gerecht zu werden.

Des Weiteren wird das bestehende Treppenhaus wieder hergerichtet, fortgeführt und durch einen Fahrstuhl ergänzt und somit die Barrierefreiheit für das Gebäude hergestellt. In dem bestehenden Durchbruch am kurzen abgewinkelten Teil des Gebäudes wird eine Spindeltreppe eingefügt, um eine innenräumliches Ineinandergreifen der Räume zu gewährleisten. Ansonsten wird eine weitestgehende Konservierung des Bestehenden und deren Einzelteile angestrebt. Nutzungsspezifisch soll dort - gestern, wie heute - das Arbeiten am  Schreibtisch stattfinden, eine Art Kreativlabor, indem aber auch Firmen sich geschossweise Einmieten können. An das Verwaltungsgebäude schmiegt sich ein neu entstandener Innenhof an, der sich dem Wohnen auf Zeit verschreibt.

Ein Ort des Innehaltens und auf sich bezogen seins. Kleinstwohnmodule reihen sich hierfür aneinander und werden ergänzt durch einen großzügigen Apparat von gemeinschaftlich genutzten Bereichen, wie Kaffeebar, Waschsalon, Fitnessraum, die sich in verschiedenen Bereichen des Verwaltungsgebäudes, sowie im Solitär wiederfinden. Zentrales Anliegen war es die materielle Formensprache der gegeben Baustruktur nicht anzuzweifeln und dem einen Kontrapunkt zu setzen, sondern vielmehr eine einfühlsame materiellen Ergänzung des Bestehenden vorzunehmen. Dabei lassen sich die neuen Eingriffe auf der Betrachtungsebene klar einordnen. Es entsteht ein Spiel aus differenzierter Fern- und Nahwirkung. Aus der Ferne wirken alle Bausteine als Ensemble, bei genaueren Hinsehen lässt sich Differenz von Alt- und Neubau ausmachen - die suggestive Kraft, die auf den Betrachter wirkt, ihn in Bewegung setzt und seine Wahrnehmung aktiviert. Hierfür lag es Nahe ausschließlich Materialien wie gebrannter Stein und rohes Holz zu verwenden.

Als sinnliche, vom Handwerk geprägte Materialien, die im Außen- wie auch im Innenraum wieder zu finden sind. Im Zusammenspiel der drei entstandenen Bausteine wird ein Ensemble generiert, von dem eine starke suggestive Kraft ausgehen soll. Ziel war es darüber hinaus Städtebau-, Objekt- und Detailebene in fließenden Übergängen miteinander in Bezug zu setzen und zu verknüpfen. Es entsteht ein Quartier, dass in seiner Nutzungsdichte und Diversität zu einem Bestandteil von Berga und über die Ortsgrenzen hinaus zu einem wichtigen Anlaufpunkt für Leute mit Ideen und Leidenschaft werden wird. Mit der WERKSTADT wurde die alte Textilfabrik wiederbelebt und durch ein übergeordnetes Konzept dem Baubestand eine Sinnhaftigkeit gegeben, welches das Fortbestehen dieses einmaligen Industriedenkmals sichert.

Pascal Schettki und Andreas Mischke

Grundstückfläche
17.200 m²
Bebaute Fläche
1.004 m²