Petrus-Jakobus-Kirchenzentrum

Peter Krebs Büro für Architektur

Peter Krebs Büro für Architektur

SAKRALE EINHEIT

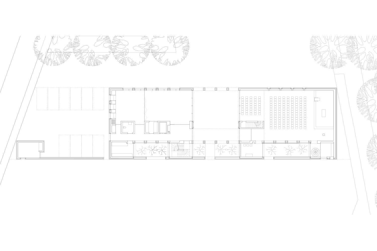
Der Neubau des Petrus-Jakobus-Gemeindezentrums wurde an einem Quartiersplatz in der Karlsruher Nordweststadt geplant, auf dem regelmäßig ein Wochenmarkt stattfindet. Kirche und Gemeindehaus schließen als Gebäudespange die Südseite des Platzes ab. Beide bilden im Quartier ein ruhiges, beständiges, nach außen hin eher geschlossen wirkendes Gebäudeensemble, das sich über einen gemeinsamen Hof zur Umgebung öffnet. Im Erdgeschoss öffnen sich beide Gebäudeteile zum Hof hin, sodass eine lineare, offene Raumfolge von Altarbereich, Kirchenraum und Hofbereich bis hin zu den zwei zusammenschaltbaren Gemeindesälen entsteht. 

Die Außenwände sind aus geschlämmten Ziegeln gemauert, wodurch das neue Gebäudeensemble auf angemessene Weise mit den verputzten Bauten der Umgebung korrespondiert. Die geneigten Dachflächen verbinden die beiden Gebäudeteile nicht nur miteinander zu einer Einheit, sondern auch mit den Satteldächern der Umgebungsbebauung. Der Kirchenraum hat einen eindeutig sakralen Charakter. Der erhöhte Lichtraum über dem Altarbereich wird von zwei Fensterflächen im Osten und im Süden belichtet, sodass das Tageslicht die Lichtstimmung im Kirchenraum bestimmt. Seitlich öffnet sich die Kirche zu einen Gartenhof, der Teil eines Raumbandes ist, das Kirche und Gemeindehaus verbindet und als eine Art Distanzzone nach Süden hin zur Wohnbebauung ausgebildet ist. Dieses Raumband bildet eine Abfolge von Räumen, zu denen ein kleiner Andachtsraum und mit Ahornbäumen bepflanzte Gartenhöfe gehören.

 

Peter Krebs

Ort
Karlsruhe, Deutschland
Bauherr
Evangelische Kirche, in Karlsruhe vertreten durch die Bauabteilung
Architektenprofil
Grundstückfläche
1.184 m²
Nutzungsfläche
824 m²
Bauzeit
2015 – 2017