Casa 1014

HARQUITECTES

Casa 1014

INMITTEN ALTER MAUERN

In den Altbaubestand von Granollers wurde dieses Einfamilienhaus eingepasst. Mit seinem roten Backstein korrespondiert es vorteilhaft mit dem Bestand ringsum.

 

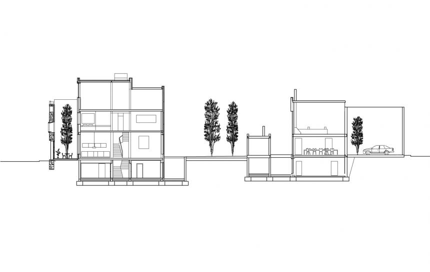
Das Grundstück befindet sich im historischen Stadtzentrum von Granollers in einer städtischen Wohnbebauung zwischen zwei Trennmauern. Der verfügbare Raum ist nur 6,5 m breit und erstreckt sich zwischen zwei Straßen, von denen aus das Grundstück zugänglich ist. Aufgrund des baufälligen Zustandes des bestehenden Gebäudes konnte nur die Hauptfassade, die recht gut erhalten ist und einen gewissen Denkmalwert aufweist, erhalten werden. Wunsch der Eigentümer war es, im Haus zwei Bereiche zu unterscheiden: den häuslichen Bereich, in dem das Familienleben stattfindet, und einen zweiten, ruhigeren Bereich, der vom ersten abgetrennt und funktional unabhängig ist und vielseitig als Wohnzimmer, für den Empfang von Gästen, Mahlzeiten und Zusammenkünfte genutzt werden kann. Die Ost-West-Ausrichtung des Grundstücks und die geringe Fläche zwischen den beiden angrenzenden Straßen machten es schwierig, eine gute Sonneneinstrahlung zu erzielen.

Dieser Umstand kam zu der Schwierigkeit hinzu, im Erdgeschoss eine Privatsphäre einzurichten; das Gebäude musste von der vorderen Straßenlinie zurückverlegt werden, zudem wurden auf beiden Seiten des Hauses Zugangshöfe geschaffen. Diese Patios sorgen für eine höhere Sonneneinstrahlung und schaffen Übergangsräume, sowohl zwischen Straße und Haus als auch zwischen Außen- und Innenklima. Durch die Abfolge von Räumen und thermischen Bedingungen entsteht ein 53 m langes Erdgeschoss mit insgesamt 345 qm, das der häufigsten und gemeinsamen Nutzung des Hauses dient. Damit entsteht auch ein langer, durchgehender Flur, der den Zugang zu den Privat- und Servicebereichen im Ober- bzw. im Untergeschoss ermöglicht. Gleichzeitig werden die Außenräume so strukturiert, dass das Grün und die Naturkeramik echte Landschaftsimpressionen in einem Grundstück ohne Aussicht erzeugen.

Die Organisation der Raumabfolge folgt vollständig dem strukturellen System des Hauses und greift auf ein Wandsystem zurück, das den Charakter des Hauses wesentlich verstärkt. Die Material- und Raumverteilung trägt zu einem optimalen Passivverhalten des Hauses bei, ausgehend von den bioklimatisierten Terrassen, die nicht nur die thermische Stabilität zwischen 15 und 25 Grad Celsius und damit ein mittleres und besseres Klima gewährleisten, sondern auch durch die Reduktion des Energiebedarfs der von diesen Terrassen abgehenden Räume. Das Konstruktionssystem und die doppelte Ziegelwandfassade, die mit einer 10 cm dicken, isolierenden Holzfaser ausgefüllt ist, garantieren ein sehr gutes Verhältnis zwischen Wärmedämmung und Wärmeerhalt im Innern.

 

H Arquitectes

Ort
Granollers, Spanien
Bauherr
Privat
Architektenprofil
Grundstückfläche
340 m²
Bebaute Fläche
161 m²
Nutzungsfläche
412,5 m²
Brutto-Rauminhalt
471,7 m³
Bauzeit
2011 – 2014
Baukosten
1.050.000 EUR